Flexible Modular & Workspaces

Standard or custom, built

to industrial standards and tailored to your business

10-Year Limited Warranty

Guaranteed protection against leaks, long-lasting durability, and complete peace of mind

Ships Across

Africa

Fast, Reliable Delivery of Modular Offices, Container Units & Park Homes — On Time, Every Time

Workspaces for Sale or Rental 

Modular Offices, Container Offices, Park Homes & Mobile Office Units for Sale or Rent Across South Africa — Built, Delivered and Installed Fast

Partitionable
For Sale/Rental
m3
MobiCabins

Compact modular units, versatile for office, storage, or accommodation.

Request Quote / 6000mm x 2400mm

Made To Your Preferred Size
Partitionable
For Sale/Rental
m6
Glass Containers

Sleek glass modular units, ideal for office, retail, or leisure spaces.

Request Quote / 6000mm x 2400mm

Made To Your Preferred Size
Partitionable
For Sale/Rental
m7
Mobile Offices

Versatile mobile office trailer, ideal for office, logistics, or accommodation needs..

Request Quote / 6000m x 2400mm

Made To Your Preferred Size
Partitionable
For Sale/Rental
m2
Self-Services Stations

Enable independent banking and other confidential self-service activities.

 Request Quote / 1200mm x 1200mm

Made To Your Preferred Size
Partitionable
For Sale/Rental
m8
Retail Containers

Modular units for mobile retail setups and other operations.

Request Quote / 2400mm x 1800mm

Made To Your Preferred Size
Partitionable
For Sale/Rental
m4
Park Home Cabins

Modern unit perfect for office, retail, or accommodation.

Request Quote / 3000m x 2400m

Made To Your Preferred Size
Discover the Ultimate Workspace Solution

Welcome to Mobivendor

At Mobivendor, we design and build premium modular homes, park homes, prefab offices, glass-front units, container offices, mobile clinics, box-type ambulances, and work trailers across South Africa.

We develop comfortable and home-like products because we understand that people who dedicate their lives to service spend much of their lives at work.

We craft products that enhance productivity and transform any location into an ideal workspace. By blending comfort, functionality, and mobility, we transform any location into an ideal workspace — enabling clients to work effectively wherever their service takes them.

Our Mission
Revolutionising Workspaces Across South Africa with Premium Modular Homes, Container Offices, Park Homes, and Mobile Units — Empowering Service-Driven Professionals Everywhere
Our Vision
ransforming Workspaces Across South Africa — Where Modular Offices, Container Units, and Park Homes Combine Comfort and Productivity

Why Choose Us?

Mobivendor designs and manufactures modular park homes, mobile offices, and container units for mining, education, and residential sectors across South Africa and Lesotho. Our portable workspaces combine comfort, mobility, and functionality — delivered directly to your site, fully equipped and ready to use.

Space Units
Custom-built living spaces and converted containers for premium environments.
Mobile Solutions
Specialised modifications for refrigeration, mobile offices, and custom applications.
Rentals
Short-term and long-term unit rentals for project-based or trial needs.
Buy/Sell Pre-owned
Carefully inspected and refurbished mobile spaces for cost-effective solutions.

Our Standard Components

Entry-Level or Fully Custom Modular Park Homes and Mobile Offices — Premium Components, Flexible Designs, Ready for Mining, Schools, Clinics, and Residential Use Across South Africa and Lesotho

Beige Simple Photo Signature Twitter Profile Picture (7)

I-beam chassis


offers superior strength, durability, and load distribution, are cost-effective, versatile, and environmentally friendly due to recyclability and efficient material usage.

Beige Simple Photo Signature Twitter Profile Picture (6)

Sandwich panels


are lightweight, strong, provide excellent thermal and sound insulation, durable, easy to install, cost-effective, versatile, and offer fire resistance and aesthetic appeal.

Beige Simple Photo Signature Twitter Profile Picture (8)

IBR sandwich panels


offer strength, durability, thermal and sound insulation, easy installation, cost-effectiveness, fire resistance, aesthetic appeal, and versatile applications.

Beige Simple Photo Signature Twitter Profile Picture (5)

Security bars


provide enhanced protection, deter intruders, are durable, easy to install, cost-effective, low maintenance, and increase peace of minds.

Beige Simple Photo Signature Twitter Profile Picture (9)

Aluminum lock sets


are lightweight, resistant to corrosion, durable, cost-effective, easy to install, and offer modern aesthetics.

Beige Simple Photo Signature Twitter Profile Picture (4)

Rubber floor laminate


offers durability, slip resistance, easy maintenance, sound insulation, shock absorption, and comfort underfoot, making it ideal for high-traffic areas.

xx1
xx2
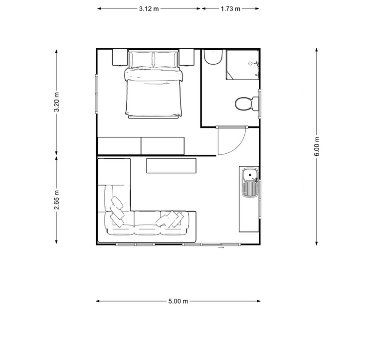
Floor Plan 1
WhatsApp Image 2025-08-29 at 16.59.31 (1)
WhatsApp Image 2025-08-29 at 16.59.31
WhatsApp Image 2025-08-29 at 16.59.30
315
315a
1500
Year Established
1
Happy Clients
1
Scholarships
1
Awards Won

Our Work is Building Spaces that Get You to Work.

We are dedicated to creating quality work and living space solutions that enhance productivity and user experience. Our premium units blend comfort and functionality.